UNILODGE ULTIMO

UNILODGE ULTIMO

Wattle Street 437
2007 Sydney

Objektbeschreibung
Do they call it Ultimo because it’s the ultimate place to live? The ultimate spot for shopping and parks and cafes and historic pubs and entertainment and sports facilities and… and… well, pretty much everything you could wish for? It must be the reason. Ultimately, UniLodge Ultimo it’s the perfect place to call home when you’re filling your minds with big ideas while you’re having a big study adventure. This brand-new property is designed for a smaller, more intimate community. It’s cosy, comfy, tasty and boutiquey. You’ll be living in Sydney’s heart of higher learning where students and city suits alike mingle, work and play. And from this heart you can discover the very best of one of the world’s most iconic cities. The University of Technology, Sydney Institute of TAFE, Notre Dame University and Torrens University are all located here, while The University of Sydney is just up the road in neighbouring Camperdown. There is so much to explore and find, but join Residential Life and you’ll get to know this area like a local in no time. There are plenty of communal spaces around the property to study, relax and meet fellow residents from all around the world. And our staff are always on hand to help you with anything you need – from study needs to your emotional wellbeing. It’s just another way we make sure you have the safest and happiest experience here at UniLodge Ultimo.

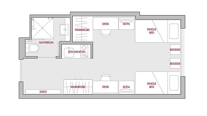
Studio Twin

* Prices per person If you want to share with a friend, these twin studio units are for you. Taking advantage of the space, each unit is self-contained and equipped with a kitchenette and private ensuite. The unit is furnished and air-conditioned, provides a microwave, cooktop and rangehood, fridge and sink and has heaps of storage. Each resident has their own study desk and chair, wardrobe and bed. The studios have varying outlooks depending on the location within the complex, but all have natural light looking out to the surrounding streets or to the internal courtyards in the building. *These photos displayed are for illustration purposes only. The actual room layout may differ from this photo. Room does not include linen or any personal effects that may be displayed. Your rent includes: • Residential Life Program • Electricity • Gas • Unlimited data per month internet Wi-Fi access • Contents Insurance* - Please click here to view the Product Disclosure Statement and Financial Services Guide.
Möbliert Mit eigenem Bad Mit eigener Küche Barrierefrei Mit eigenem Stellplatz

Studio Single

Thoughtfully designed and laid out studio apartments are ideal for students who like their own space. Each unit is self-contained and equipped with a kitchenette and private ensuite. The unit is furnished and air-conditioned, provides a microwave, cooktop and rangehood, fridge and sink, study desk and chair, wardrobe, bed and heaps of great storage. The studios have varying outlooks depending on the location within the complex, but all have natural light looking out to the surrounding streets or to the internal courtyards in the building. *These photos displayed are for illustration purposes only. The actual room layout may differ from this photo. Room does not include linen or any personal effects that may be displayed. Your rent includes: • Residential Life Program • Electricity • Gas • Unlimited data per month internet Wi-Fi access • Contents Insurance* - Please click here to view the Product Disclosure Statement and Financial Services Guide.
Möbliert Mit eigenem Bad Mit eigener Küche Barrierefrei Mit eigenem Stellplatz
Preise Gesamt ab 320 AUD
Verwaltung
Lage & Anfahrt
Anfrage-Merkliste

Die Merkliste ist noch leer.